Bureau
Kévin DUFOURD MarketPlaceImmobilier vous propose en EXCLUSIVITE un LOCAL COMMERCIAL…
60,000€ frais d'agence inclus
13015 MARSEILLE
450,000€ frais d'agence inclus
ID du bien :
398695B-BFT
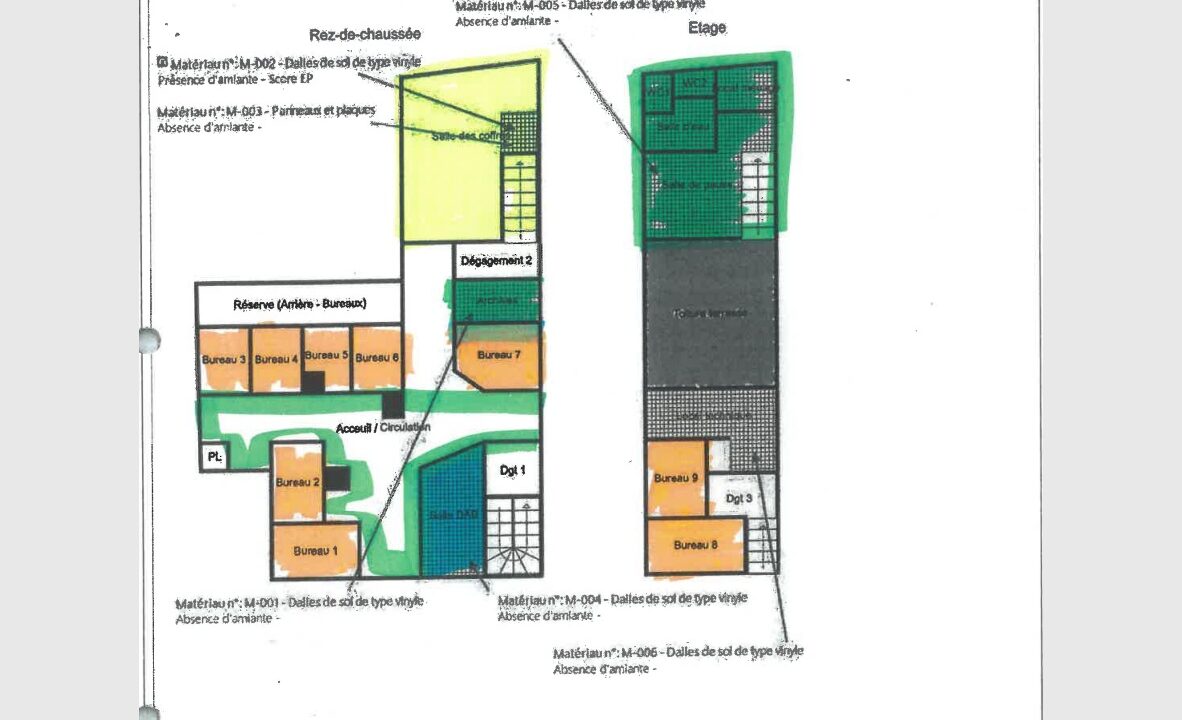
Idéalement situé à deux pas de la station de métro Capitaine Gèze, ce local professionnel en R+1 entièrement rénové offre une surface totale de 266 m².
Il se compose d’un espace d’accueil, de 9 bureaux, d’une salle de réunion, d’un espace détente avec coin cuisine, d’une salle d’eau et de 2 sanitaires.
Ce bien prêt à l’emploi convient parfaitement pour une activité tertiaire, un centre de formation, un cabinet médical ou paramédical, des professions libérales ou tout projet nécessitant des espaces de travail fonctionnels et bien agencés.
Un secteur en plein renouveau urbain !
Le quartier Capitaine Gèze bénéficie actuellement de grands travaux d’aménagement portés par l’établissement public Euroméditerranée : création d’un nouveau boulevard urbain, plantation de centaines d’arbres, nouvelle place publique devant la station de métro, développement des mobilités douces et arrivée prochaine du tramway.
Autant d’éléments qui participent à la revalorisation du secteur et offrent une forte attractivité pour les professionnels et investisseurs.
Une opportunité rare sur un emplacement stratégique et en devenir.
Vente des murs à 450.000 euros, honoraires vendeur.
Pour visiter et vous accompagner dans votre projet, contactez Samir BOUSSEFET au 07 44 52 90 57 ou par courriel à s.boussefet@proprietes-privees.com,
Selon l’article L.561.5 du Code Monétaire et Financier, pour l’organisation de la visite, la présentation d’une pièce d’identité vous sera demandée.
Cette vente est garantie 12 mois. » Informations sur le bien à vendre + DPE + mentions sur la copropriété le cas échéant »
Cette présente annonce a été rédigée sous la responsabilité éditoriale de Samir BOUSSEFET agissant sous le statut d’agent commercial, immatriculé au RSAC marseille 898011648 auprès de la SAS PROPRIETES PRIVEES, au capital de 40 000 euros, ZAC LE CHÊNE FERRÉ – 44 ALLÉE DES CINQ CONTINENTS 44120 VERTOU, SIRET 487 624 777 00040, RCS Nantes. Carte professionnelle Transactions sur immeubles et fonds de commerce (T) et Gestion immobilière (G) n° CPI 4401 2016 000 010 388 délivrée par la CCI Nantes – Saint Nazaire. Compte séquestre n°30932508467 BPA SAINT-SEBASTIEN-SUR-LOIRE (44230) ; Garantie GALIAN – 89 rue de la Boétie, 75008 Paris – n°28137 J pour 2 000 000 euros pour T et 120 000 euros pour G. Assurance responsabilité civile professionnelle par MMA Entreprise n° de police 120.137.405
Mandat réf : 398695- Le professionnel garantit et sécurise votre projet immobilier.
Samir BOUSSEFET (EI) Agent Commercial – Numéro RSAC : marseille 898011648 – .
Kévin DUFOURD MarketPlaceImmobilier vous propose en EXCLUSIVITE un LOCAL COMMERCIAL…
60,000€ frais d'agence inclus
Kévin CHEVALIER vous propose le fonds de commerce de ce…
270,000€ frais d'agence inclus