Fonds de commerce à Bordeaux
A vendre Bar licence 4, Tabac, Loto, Pmu. Bel établissement…
498,000€
28100 DREUX
A louer
800€ /mois HC
ID du bien :
441005B-YAR
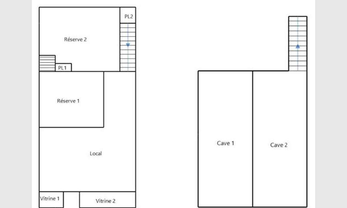
DREUX 28- LOCAL COMMERCIAL HYPER CENTRE VILLE SECTEUR PIETON de 72m².
IL bénéficie d’un emplacement qualitatif N°1 bis, entouré de commerces de qualités sur rue piétonne avec parking à 50m, gare à 500m.
Cette jolie boutique se compose de belles vitrines (Larg 7 m linéaire) avec rideaux de fer électrique, 3 pièces dont boutique, autre pièce, et réserve au fond du local pouvant être reliées. Beaux volumes pour une surface totale de 72m2. Chauffage central gaz, compteur électrique individuel, compteur eau divisionnaire.
Idéal pour professions tertiaire, commerces de bouche, assurance, mutuelle…RESTAURATION INTERDITE.
Une cave complète cet ensemble.
Des travaux de remise aux normes et décoration sont à prévoir.
Loyer 800 euros/Hc mensuel sans TVA soit 9600 euros annuel.
Charges copro 10 euros/mois
TF 1300 euros charge locataire
Dépôt de garantie 3 mois loyer Hc.
Rédaction bail commercial sur base 3/6/9 ans notarié charge preneur.
Honoraire agence 1900 euros/Ht soit 2280 euros Ttc charge preneur.
Pour visiter et vous accompagner dans votre projet, contactez Yves ARCHAMBAUDIERE, au [Coordonnées masquées] ou, par courriel à [Coordonnées masquées].
Selon l’article L.561.5 du Code Monétaire et Financier, pour l’organisation de la visite, la présentation d’une pièce d’identité vous sera demandée.
Cette présente annonce a été rédigée sous la responsabilité éditoriale de Yves ARCHAMBAUDIERE agissant sous le statut d’agent commercial immatriculé au RSAC CHARTRES 529 996 332 auprès de SAS PROPRIETES PRIVEES, au capital de 44 920 euros, ZAC LE CHÊNE FERRÉ – 44 ALLÉE DES CINQ CONTINENTS 44120 VERTOU; SIRET 487 624 777 00040, RCS Nantes. Carte Professionnelle Transactions sur immeubles et fonds de commerce (T) et Gestion immobilière (G) n°CPI 4401 2016 000 010 388 délivrée par la CCI Nantes – Saint Nazaire. Compte séquestre n°30932508467 BPA SAINT-SEBASTIEN-SUR-LOIRE (44230). Garantie GALIAN-SMABTP – 89 rue de la Boétie, 75008 Paris – n°28137 J pour 2 000 000 euros pour T et 120 000 euros pour G. Assurance responsabilité civile professionnelle par GALIAN-SMABTP n° de police 28137.J
Mandat réf : 441005- Réf annonce: L-9600B-YAR
Le professionnel sécurise votre projet immobilier.
Yves ARCHAMBAUDIERE spécialisé en cession de fonds de commerce, murs commerciaux
Pour tous renseignements complet de ce dossier, un document de confidentialité vous sera demandé avec votre pièce identité afin d’obtenir les informations. Visite sur RDV.
Non soumis au DPE
Yves ARCHAMBAUDIERE (EI) Agent Commercial – Numéro RSAC : CHARTRES 529 996 332 – .
A vendre Bar licence 4, Tabac, Loto, Pmu. Bel établissement…
498,000€
Idriss Gass vous propose le Fonds de commerce spécialisé dans…
132,000€ frais d'agence inclus