EXCLUSIVITE TOURCOING – RESTAURANT RAPIDE 70 m² , TERRASSE
Morad MEZDOUR vous propose le fonds de commerce de ce…
66,000€ frais d'agence inclus
60740 SAINT MAXIMIN
9,584€ /mois HC
ID du bien :
416975B-DOUB
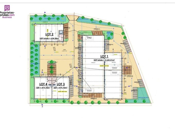
Dounia BK vous propose à la location Situé au coeur de la zone commerciale de Saint-Maximin, ce local commercial d’environ 900 m² bénéficiant d’un environnement d’enseignes nationales et d’un flux client important. Actif idéal pour l’implantation d’un supermarché, magasin alimentaire, bazar, discount ou enseigne spécialisée grand format.
Surface : 900 m² environ
Local libre immédiatement
Zone commerciale très fréquentée
Forte visibilité et accessibilité
Parking à proximité
Accès livraisons possible
Belle façade / vitrine selon configuration
Adapté activité alimentaire
**Points forts
Emplacement premium dans le Sud Oise
Zone de chalandise dense
Flux véhicules et clients réguliers
Environnement commercial dynamique
Format rare sur le secteur
Bail commercial 3/6/9, loyer 8.900 euros.
Pour visiter et vous accompagner dans votre projet, contactez Dounia BENMABROUKA, au 0651505852 ou, par courriel à d.benmabrouka@proprietes-privees.com.
Selon l’article L.561.5 du Code Monétaire et Financier, pour l’organisation de la visite, la présentation d’une pièce d’identité vous sera demandée.
Cette présente annonce a été rédigée sous la responsabilité éditoriale de Dounia BENMABROUKA agissant sous le statut d’agent commercial immatriculé au RSAC Compiègne 913 892 675 auprès de SAS PROPRIETES PRIVEES, au capital de 44 920 euros, ZAC LE CHÊNE FERRÉ – 44 ALLÉE DES CINQ CONTINENTS 44120 VERTOU; SIRET 487 624 777 00040, RCS Nantes. Carte Professionnelle Transactions sur immeubles et fonds de commerce (T) et Gestion immobilière (G) n°CPI 4401 2016 000 010 388 délivrée par la CCI Nantes – Saint Nazaire. Compte séquestre n°30932508467 BPA SAINT-SEBASTIEN-SUR-LOIRE (44230). Garantie GALIAN-SMABTP – 89 rue de la Boétie, 75008 Paris – n°28137 J pour 2 000 000 euros pour T et 120 000 euros pour G. Assurance responsabilité civile professionnelle par GALIAN-SMABTP n° de police 28137.J
Mandat réf : – Le professionnel garantit et sécurise votre projet immobilier.
Dounia BENMABROUKA (EI) Agent Commercial – Numéro RSAC : compiegne 913 892 675 – .
Les informations sur les risques auxquels ce bien est exposé sont disponibles sur le site Géorisques : www. georisques. gouv. fr
Morad MEZDOUR vous propose le fonds de commerce de ce…
66,000€ frais d'agence inclus
Sylviane DELIEGE-LEGA, au 0638392171, vous propose les murs de ces…
478,000€ frais d'agence inclus