OUEST VERSAILLES – Cession de bail- ANGLE DE RUE- local 50 m²
exclusivité- Au centre d’une commune réputée à l’Ouest de Versailles,…
56,000€ frais d'agence inclus
26200 MONTELIMAR
A vendre
644,700€ frais d'agence inclus
ID du bien :
430597B-ZER
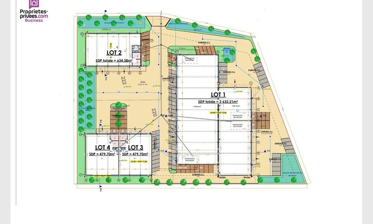
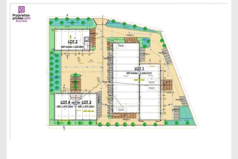
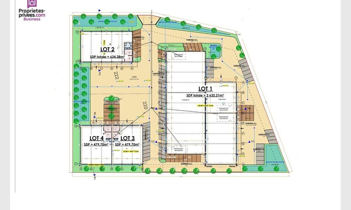
Drome – 26200 MONTELIMAR – EMPLACEMENT N°1 –
Laurent ZERBIB vous propose ce local d’activités neuf de 630 m² modulable, stratégiquement implanté au sein d’un parc d’activités moderne à MONTELIMAR NORD. Possibilité d’activité industrielle ou artisanale.
Livrés en état brut avec fluides en attente, ces espaces offrent une totale flexibilité d’aménagement permettant une adaptation optimale aux exigences spécifiques de votre activité.
Bénéficiant d’un emplacement stratégique dans un environnement économique dynamique, ces locaux profitent d’une excellente desserte et d’un accès direct aux principaux axes routiers, garantissant ainsi une optimisation de vos flux logistiques et des déplacements de vos équipes.
– Façade bardage double peau
– Fluides en attente
– Places de stationnement extérieures
– Portes sectionnelles de 4,50 m
– Structure métallique, livraison brute
– Couverture bac acier avec étanchéité multicouches
Dossier et photos sur demande avec LDC. Mandat 430597 .
Cession des murs : 614 000 Euros HT (honoraires 5% HT inclus charge acquéreur soit 644 700 Euros HT hors honoraires)
Informations sur les risques auxquels ce bien est exposé sont disponibles sur le site Géorisques : www.georisques.gouv.fr
Pour visiter et vous accompagner dans votre projet, contactez Laurent ZERBIB, au 06..107..995..27 ou, par courriel à l.zerbib@proprietes-privees.com. Selon l’article L.561.5 du Code Monétaire et Financier, pour l’organisation de la visite, la présentation d’une pièce d’identité vous sera demandée. Cette annonce a été rédigée sous la responsabilité éditoriale de Laurent ZERBIB agissant sous le statut d’agent commercial immatriculé au RSAC Nîmes 434 067 575 auprès de SAS PROPRIETES PRIVEES, au capital de 44 920 euros, ZAC LE CHÊNE FERRÉ – 44 ALLÉE DES CINQ CONTINENTS 44120 VERTOU ; SIRET 487 624 777 00040, RCS Nantes. Carte Professionnelle Transactions sur immeubles et fonds de commerce (T) et Gestion immobilière (G) n°CPI 4401 2016 000 010 388 délivrée par la CCI Nantes – Saint Nazaire. Compte séquestre n°30932508467 BPA SAINT-SEBASTIEN-SUR-LOIRE (44230). Garantie GALIAN-SMABTP – 89 rue de la Boétie, 75008 Paris – n°28137 J pour 2 000 000 euros pour T et 120 000 euros pour G. Assurance responsabilité civile professionnelle par GALIAN-SMABTP n° de police 28137.J
Laurent ZERBIB (EI) Agent Commercial – Numéro RSAC : Nîmes 434 067 575 – .
exclusivité- Au centre d’une commune réputée à l’Ouest de Versailles,…
56,000€ frais d'agence inclus
Rosa Lopes vous propose à la vente cet immeuble de…
349,000€ frais d'agence inclus