20200 BASTIA – CESSION DE BAIL, LOCAL 37 M², EMPLACEMENT 1B
BASTIA, Frédéric MANGEOT et Vanessa, vous proposent le bail de…
33,000€ frais d'agence inclus
32150 CAZAUBON
450,000€ frais d'agence inclus
ID du bien :
11429DQ612
Dans station thermale réputée du Gers , vente des murs d’un hôtel-restaurant classé 2 étoiles, actuellement exploité sous un bail commercial professionnel. L’établissement situé proche d’un axe très passager se compose de la manière suivante:
– Une salle de restaurant climatisée d’environ 35 places, s’étendant sur une superficie de 120 m², ainsi qu’une terrasse pouvant accueillir entre 15 et 20 convives.
– Une cuisine professionnelle, une réserve, et une salle d’accueil dédiée à la partie hôtel.
– Un garage pour deux voitures et un parking.
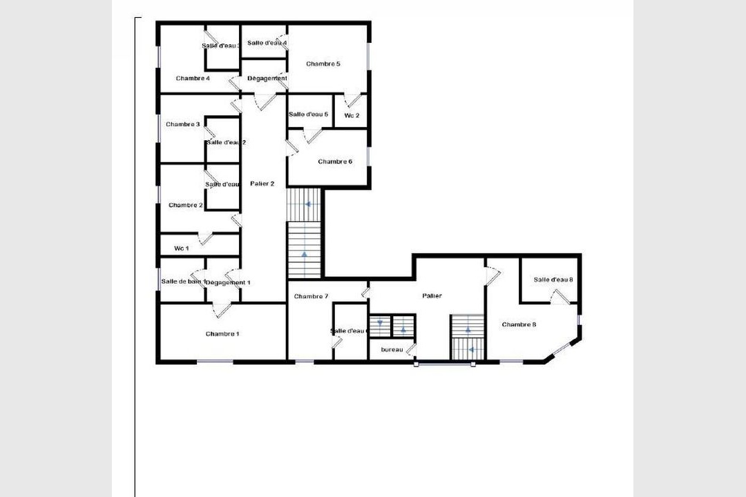
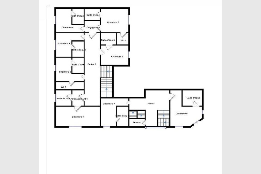
À l’étage, l’hôtel dispose de 8 chambres, accompagnées d’un logement de fonction de 62.59 m² type T3.
La partie actuellement occupée par le propriétaire comprend :
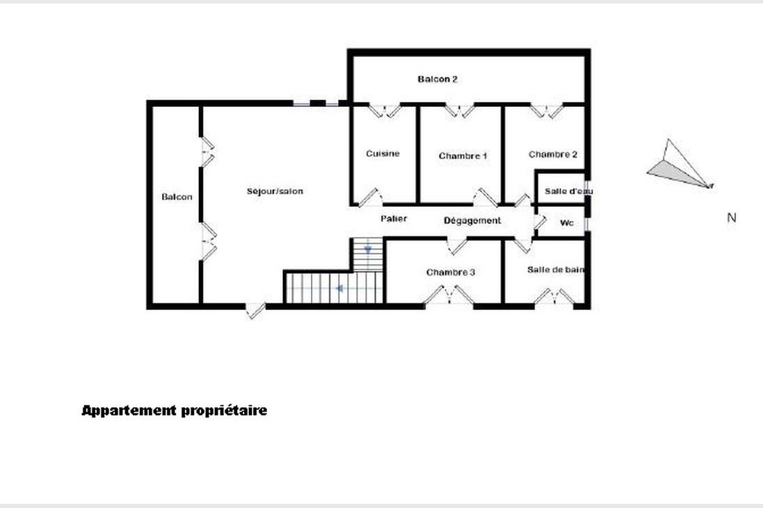
– Un appartement de type T4 avec salon, salle à manger, une cuisine séparé et équipé, trois chambres avec placard mural, une salle de bain, une salle d’eau et un WC séparé, l’ensemble, situé au premier étage, d’une superficie de 132.07 m² et disposant d’un poêle à granulé ainsi que d’une climatisation. Par ailleurs, cet appartement dispose aussi d’un jardin privatif de 650 m2 et d’un bassin d’agrément.
– Un studio meublé et climatisé en rez-de-chaussée, d’une surface de 25.55 m², avec un jardin attenant.
RENTABILITÉ LOCATIVE:
( Hôtel restaurant + Studio ) = 20 380 E par an.
POSSIBILITÉ de louer l’appartement Type T4 / 800E par mois.
Les informations sur les risques auxquels ce bien est exposé sont disponibles sur le site Géorisques : www. georisques. gouv. fr.
Pour plus d’informations et pour une visite, contactez Hervé DESPLAT : CLAIRIMMO Barbotan – 3 avenue des Thermes 32150 CAZAUBON – Service Transaction : 05 62 03 70 61 Service Location : 05 32 09 35 20 email : agencebarbotan@clairimmo.email RCS 851 986 620 Agent commercial indépendant du réseau national Clairimmo N° RSAC : 495 108 755
BASTIA, Frédéric MANGEOT et Vanessa, vous proposent le bail de…
33,000€ frais d'agence inclus
Frederic MANGEOT et Vanessa vous proposent ces murs commerciaux libres…
116,000€ frais d'agence inclus