SAINTE MAXIME – CESSION DE BAIL, LOCAL COMMERCIAL 27 m²
Au coeur de SAINTE MAXIME- Cyril HUET vous propose le…
56,000€ frais d'agence inclus
35120 SAINT BROLADRE
A vendre
16,000€ frais d'agence inclus
ID du bien :
432473B-PSO
Rosa Lopes vous propose à la location ce local commercial situé dans une commune entre Dol de Bretagne et le Mont Saint Michel.
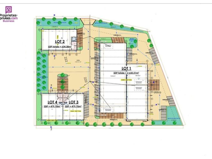
Boutique de près de 74 m² avec un espace accueil de 54 m², wc, réserve de 11 m², bureaux.
Grand parking
Belle vitrine de 5 mètres
Commune dynamique avec beaucoup de fréquentation
BAIL TOUS COMMERCES
Bail 3/6/9 tous commerces
Loyer: 950 euros TTC
Dépôt de garantie: 3 mois de loyer = 2850 euros
Pas de porte: 16 000 euros , honoraires à la charge du propriétaire.
Pour visiter et vous accompagner dans votre projet, contactez Rosa LOPES, au 0682437418 ou par courriel à r.lopes@proprietes-privees.com
Selon l’article L.561.5 du Code Monétaire et Financier, pour l’organisation de la visite, la présentation d’une pièce d’identité vous sera demandée.
Cette vente est garantie 12 mois.
Cette présente annonce a été rédigée sous la responsabilité éditoriale de Rosa LOPES agissant sous le statut d’agent commercial immatriculé au RSAC saint malo 898847280 auprès de la SAS PROPRIETES PRIVEES, au capital de 40 000 euros, ZAC LE CHÊNE FERRÉ – 44 ALLÉE DES CINQ CONTINENTS 44120 VERTOU; SIRET 487 624 777 00040, RCS Nantes. Carte professionnelle Transactions sur immeubles et fonds de commerce (T) et Gestion immobilière (G) n° CPI 4401 2016 000 010 388 délivrée par la CCI Nantes – Saint Nazaire. Compte séquestre n°30932508467 BPA SAINT-SEBASTIEN-SUR-LOIRE (44230) ; Garantie GALIAN – 89 rue de la Boétie, 75008 Paris – n°28137 J pour 2 000 000 euros pour T et 120 000 euros pour G. Assurance responsabilité civile professionnelle par MMA Entreprise n° de police 120.137.405
Mandat réf : – Le professionnel garantit et sécurise votre projet immobilier.
Rosa LOPES (EI) Agent Commercial – Numéro RSAC : – .
Au coeur de SAINTE MAXIME- Cyril HUET vous propose le…
56,000€ frais d'agence inclus
75013 PARIS EXCLUSIVITE : RARE !! BOULANGERIE PATISSERIE – 143…
250,000€ frais d'agence inclus