78000 VERSAILLES – CESSION DE BAIL , LOCAL COMMERCIAL 40 M²
Stéphanie Bouyges vous propose la cession de bail d’un local…
60,000€ frais d'agence inclus
28100 DREUX
A vendre
619,000€ frais d'agence inclus
ID du bien :
421555B-YAR
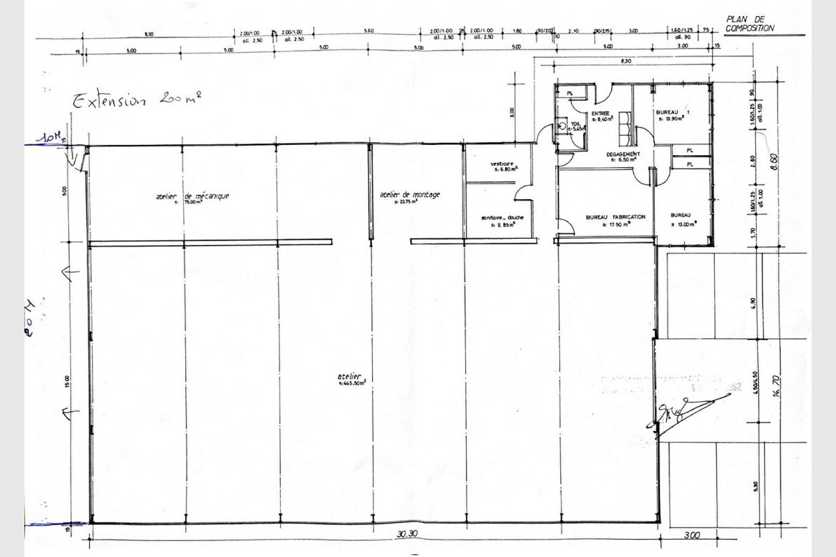
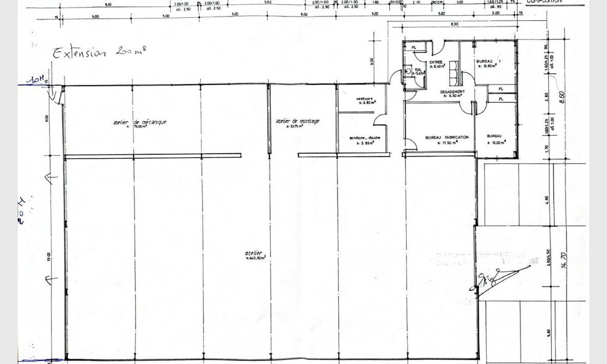
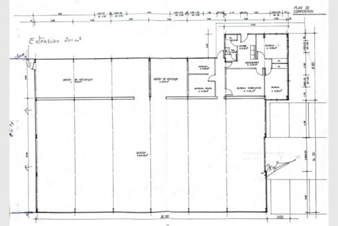
DREUX 28100- LOCAL D’ACTIVITE de 745 m² + 225 m² de bureaux.
Parcelle de 3.050 m² + parking privé .
Accès Poids Lourds, grande hauteur sous plafond, bâtiment isolé, chauffage par aérothermie au gaz.
Parcelle de 3.050 m², parking véhicules.
Zone Artisanale, Entreprise.
Axes rapide pour RN12 et RN 154.
Vente murs local activités, situé à Vernouillet dans une zone d’activité artisanale, ce local est composé d’une grande partie atelier totalisant 745 m² réparti sur grand atelier de 645 m² équipée d’un pont roulant 5 tonnes + autre atelier de 75 m² et 24 m².
Bâtiment constitué aussi de 3 bureaux, sanitaire secrétaire , sanitaires ouvriers avec douche, salle d’archives et espace de pause avec cuisine.
Autre partie accolée très beau bureaux d’études pour une surface de environ 150 m² divisé en pièces: 4 bureaux, grande salle de travail /réunion de 65m2, sanitaire(s) hommes/femmes séparés. pièce informatique/serveur.
Taxe foncière de 8500 euros .
Bien non soumis au DPE.
Idéal pour PME, investisseur. Possibilité de location(s) séparée(s)
Prévisionnel locatif annuel: 62000 euros soit=180000 euros pour bureaux 150m2 – 44000 euros pour local activité et ces bureaux.
Prix 589.000 euros FAI
Pour visiter ou plus d’informations, me contacter :
Yves ARCHAMBAUDIERE chargé d’affaires commerciales secteur, sous portage salarial pour la SAS PROPRIETES PRIVEES.
Tél: 06 60 56 72 68
mail: y.archambaudiere@proprietes-privees.com
Adhérent FNAIM . Mandat 421555-YAR-
Prix vente 619000 euros honoraire charge acquéreur.
Prix vente hors honoraire 580000 euros, les honoraires sont en charge acquéreur.
Yves ARCHAMBAUDIERE Agent Commercial – Numéro RSAC : CHARTRES 529 996 332 – .
Référence annonce : 619-B-YAR
Yves ARCHAMBAUDIERE (EI) Agent Commercial – Numéro RSAC : CHARTRES 529 996 332 – .
Stéphanie Bouyges vous propose la cession de bail d’un local…
60,000€ frais d'agence inclus
GARAGE AUTOMOBILE CESSION DE BAIL : 250 000 euros honoraires…
250,000€ frais d'agence inclus