Hyper centre de Strasbourg – Concept Store dédié aux enfants et aux parents
Claude CHODOT vous propose à la vente à Strasbourg, ce…
175,000€ frais d'agence inclus
13300 SALON DE PROVENCE
A vendre
191,500€ frais d'agence inclus
ID du bien :
430030B-KCH
Bureaux professionnels présentés en exclusivité par Pascaline et Kevin Chevalier
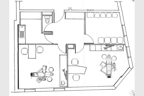
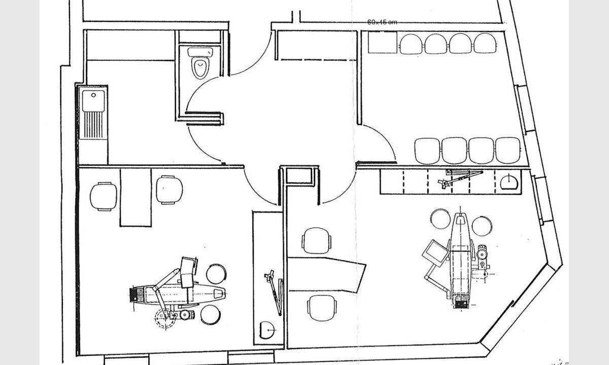
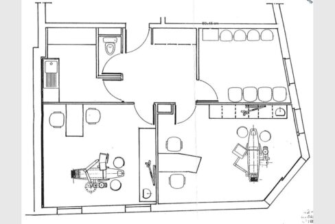
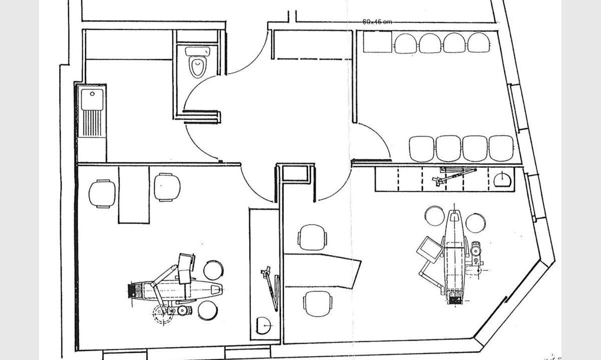
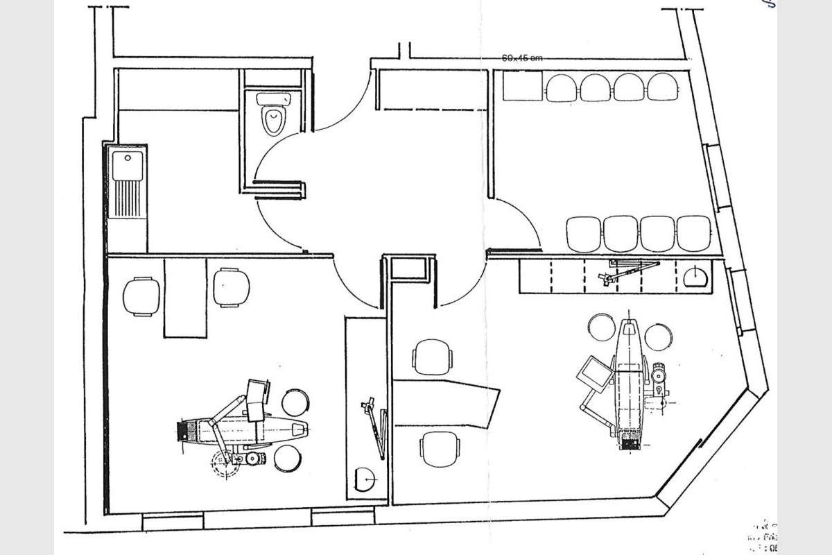
Situés au 1er étage d’une petite résidence avec ascenseur, ces bureaux T4 de 60m2 bénéficient d’un emplacement stratégique sur un axe très passant, idéal pour garantir visibilité et accessibilité à toute activité professionnelle.
Anciennement dédié au secteur médical, l’espace propose une configuration polyvalente et modulable, parfaitement adaptée à un cabinet, une agence, des bureaux de services ou un espace de consultation.
Ce local commercial T4 se compose de quatre pièces indépendantes, d’un WC et d’un coin cuisine, permettant une installation immédiate et fonctionnelle pour un large panel de professions.
Caractéristiques principales :
– Accessibilité optimale : emplacement en plein centre-ville.
– Connectivité performante : fibre optique installée.
– Confort : climatisation réversible pour un environnement agréable toute l’année.
– Tranquillité : résidence calme et bien entretenue.
Points forts :
Visibilité maximale, grâce à un axe très fréquenté générant un fort passage.
– Résidence sécurisée et discrète, idéale pour recevoir une clientèle.
– Espace modulable, adapté aux professions médicales, libérales, immobilières, de conseil ou de services.
– Configuration T4 fonctionnelle, avec WC et coin cuisine intégrés.
Un vrai potentiel pour les investisseurs
Cet espace représente également une opportunité rare d’investissement, grâce à :
– Une forte demande locative pour les bureaux bien situés en centre-ville.
– Un rendement attractif, grâce à une surface exploitable immédiatement sans travaux majeurs.
– La polyvalence du T4, permettant d’accueillir divers types de locataires professionnels (santé, services, assurances, formation, etc.).
– Un emplacement stratégique, critère numéro un pour un investissement sécurisé et durable.
La combinaison visibilité + accessibilité + modularité fait de ce bien une valeur sûre dans un marché où les locaux bien situés se raréfient.
Pascaline et Kevin Chevalier vous proposent donc ces bureaux comme une opportunité unique : un espace fonctionnel, attractif et idéalement placé, parfait pour lancer une activité ou pour constituer un investissement patrimonial rentable et pérenne.
Prix de vente 191 500 euros , honoraires vendeur.
Pour visiter et vous accompagner dans votre projet, contactez Kévin CHEVALIER, au 0619948347 ou par courriel à k.chevalier@proprietes-privees.com
Selon l’article L.561.5 du Code Monétaire et Financier, pour l’organisation de la visite, la présentation d’une pièce d’identité vous sera demandée.
Cette annonce a été réalisée sous la responsabilité éditoriale de Kévin CHEVALIER agissant en qualité de conseiller immobilier indépendant sous portage salarial auprès de la SAS PROPRIETES PRIVEES, au capital de 44 920 euros, ZAC LE CHÊNE FERRÉ – 44 ALLÉE DES CINQ CONTINENTS 44120 VERTOU; SIRET 487 624 777 00040, RCS Nantes. Carte professionnelle Transactions sur immeubles et fonds de commerce (T) et Gestion immobilière (G) n° CPI 4401 2016 000 010 388 délivrée par la CCI Nantes – Saint Nazaire. Compte séquestre n°30932508467 BPA SAINT-SEBASTIEN-SUR-LOIRE (44230) ; Garantie GALIAN – 89 rue de la Boétie, 75008 Paris – n°28137 J pour 2 000 000 euros pour T et 120 000 euros pour G. Assurance responsabilité civile professionnelle par MMA Entreprise n° de police 120.137.405 Mandat réf :430030 – Le professionnel garantit et sécurise votre projet immobilier.
Kévin CHEVALIER (EI) Agent Commercial – Numéro RSAC : – .
Les informations sur les risques auxquels ce bien est exposé sont disponibles sur le site Géorisques : www. georisques. gouv. fr
Claude CHODOT vous propose à la vente à Strasbourg, ce…
175,000€ frais d'agence inclus
DREUX 28- LOCAL COMMERCIAL HYPER CENTRE VILLE SECTEUR PIETON de…
800€ /mois HC